Objektdaten
Büro/Praxis
Objektart
Objektbeschreibung
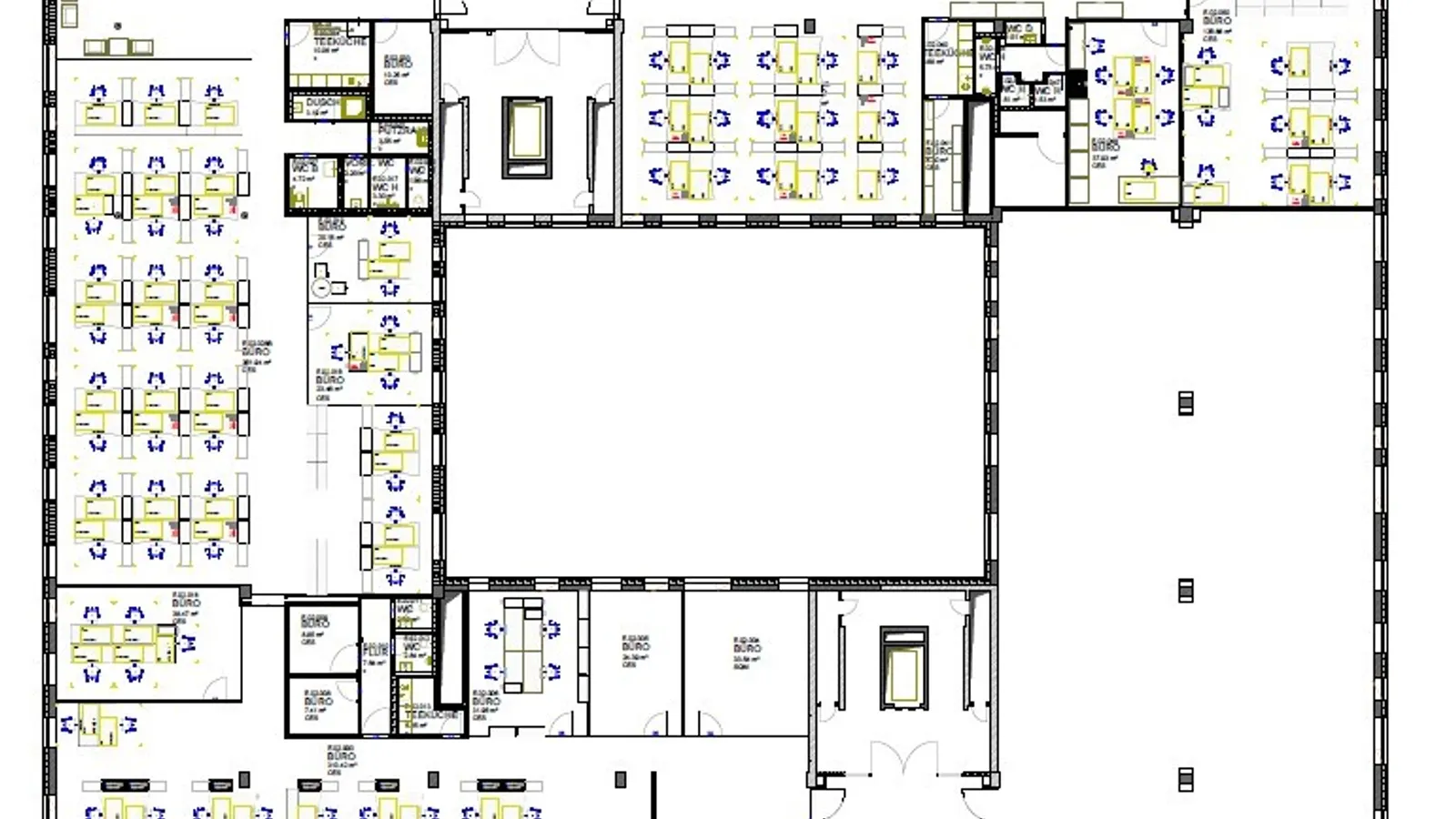
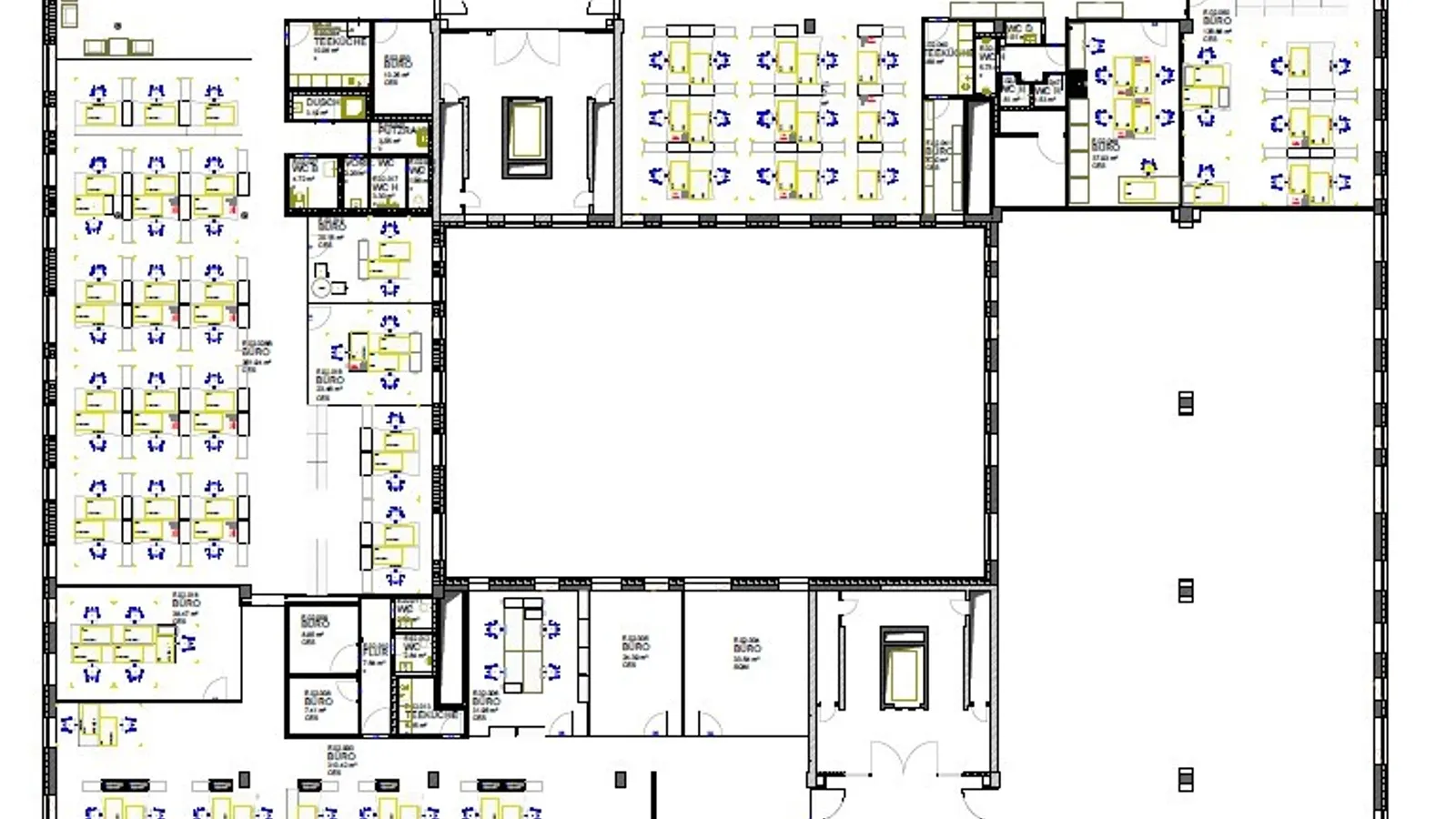
Die zur Vermietung stehende Bürofläche im 2. Obergeschoss hat ca. 1.630,70 m². Die Fläche wird derzeit als großzügige Open-Space-Büroeinheit genutzt und ist flexibel gestaltbar. Ergänzend stehen mehrere separat abgetrennte Besprechungs- und Büroräume zur Verfügung.
Lage
Das repräsentative Atriumgebäude befindet sich in zentraler Lage. Zur Ingolstädter City oder zum Hauptbahnhof benötigen Sie nur 5 Minuten. Über die Manchinger Straße besteht eine sehr gute Verkehrsanbindung zur B16 und A 9.
Umgebung
85053 Ingolstadt
Zur Anzeige der Karte benötigen wir Ihre Zustimmung zu externen Diensten.
Ausstattung
- •Glasfaser
- •Druckluft vorhanden
- •Lüftungsanlage mit Wärmerückgewinnung
- •Bauteilaktivierung und zusätzliche Heiz- und Kühldecken
- •Mobiliar/Einbauten bei Bedarf zur Ablöse
Flächen & Räume
5 AngabenNutzfläche
1.630,7 m²
Gesamtfläche
1.630,7 m²
Gewerbefläche
1.630,7 m²
Bürofläche
1.630,7 m²
Nutzungsart
Gewerbe
Ausstattung
2 AngabenGäste-WC
Ja
Keller
Ja
Bau & Energie
4 AngabenBaujahr
2017
Bauweise
Massiv
Zustand
Gepflegt
Heizung
Erdwärme
Weitere Details
7 AngabenTeilbar ab
536,9 m²
Stellplätze
Außenstellplatz (2)Tiefgarage (24)
Verfügbar ab
01.12.2026
ImmoNr
vmg872
Flexible Raumaufteilung
Ja
Boden
Fliesen
Abstellraum
Ja
Kosten & Konditionen
Kaltmiete22.014 €
Nebenkosten8.995 €
Heizkosten in NebenkostenJa
Kaution3 MM
ProvisionsfreiNein
ProvisionshinweisNach Abschluss eines rechtswirksamen Mietvertrags ist eine Provision in Höhe von 2,38 Netto-Monatsmieten inkl. MwSt. vom Mieter an den Makler zu bezahlen.
Außen-Courtage2,38 MM inkl. MwSt.
Energieausweis
Energieausweis liegt vorJa
Endenergiebedarf99 kWh/(m²·a)
Baujahr laut Energieausweis2017
Wesentlicher EnergieträgerErdwaerme
Gültig bis16.10.2028











