Objektdaten
Büro/Praxis
Objektart
2
Zimmer
Objektbeschreibung
Der DONAU TOWER steht als Ankerpunkt moderner Bürogebäude im Süden von Ingolstadt. Das Gebäude bietet: - eine hochmoderne dreizehngeschossige Gebäudeanlage (Lüftung-, Kälteanlagen, Photovoltaik) - intelligente Etagencontroller (regeln die Temperatur in den Einzelräumen) - leistungsfähiges, modular aufgebautes Gebäudeautomationssystem - Außenbereiche im 1. und 6.
Lage
Der Donau Tower befindet sich in zentraler Lage im Süden von Ingolstadt. Zur Ingolstädter City, zum Hauptbahnhof oder Nordbahnhof benötigen Sie ca. 5 Minuten. Die nächste Autobahnauffahrt (A9) ist nur wenige Minuten entfernt. Ebenso besteht eine sehr gute Anbindung an die Öffentlichen Verkehrsmittel (Buslinien 50 und 60).
Umgebung
85053 Ingolstadt / Ringsee
Zur Anzeige der Karte benötigen wir Ihre Zustimmung zu externen Diensten.
Ausstattung
- •Es warten u. a. folgende Highlights auf Sie
- •Hochwertiger Naturstein in öffentlichen Bereichen
- •Lüftungsanlage
- •Betonkernaktivierung
- •Photovoltaik
- •Parkplätze mit Lademöglichkeit in den 2 Untergeschossen
- •zusätzliche Parkplätze im nahegelegenen Parkhaus
- •Digitales Schließsystem
- •uvm.
- •Die Büroflächen werden in einem grundausgebauten Zustand übergeben.
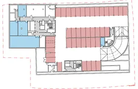
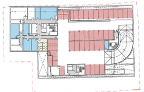
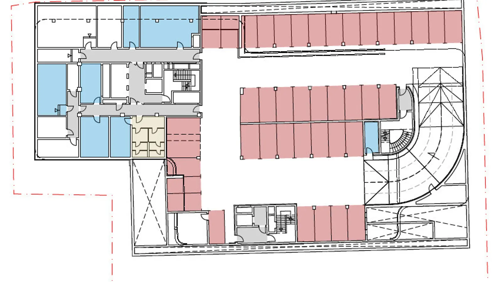
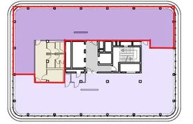
Grundrisse
Grundrisse
Grundriss 1. UG
1 / 3



Flächen & Räume
6 AngabenNutzfläche
305,0 m²
Gesamtfläche
305,0 m²
Gewerbefläche
245,1 m²
Bürofläche
245,1 m²
Etage
7
Nutzungsart
Gewerbe
Ausstattung
2 AngabenSeparate WCs
2
Keller
Ja
Bau & Energie
4 AngabenBaujahr
2024
Bauweise
Massiv
Zustand
Erstbezug
Heizung
Fernwärme
Weitere Details
4 AngabenVerfügbar ab
Q2 2025
ImmoNr
vmg675
Flexible Raumaufteilung
Ja
Stellplätze
TiefgarageParkhaus
Kosten & Konditionen
Kaltmiete5.375 €
Nebenkosten1.108 €
Heizkosten in NebenkostenJa
Kaution3 MM
ProvisionsfreiNein
ProvisionshinweisNach Abschluss eines rechtswirksamen Mietvertrags ist vom Mieter eine Provision von 2,38 Netto-Monatsmieten inkl. MwSt. an den Makler zu bezahlen.
Außen-Courtage2,38 Nettomonatsmieten inkl. MwSt.
Energieausweis
Energieausweis liegt vorJa
Baujahr laut Energieausweis2024
Wesentlicher EnergieträgerFernwärme















