Objektdaten
Einzelhandel
Objektart
2
Zimmer
Objektbeschreibung
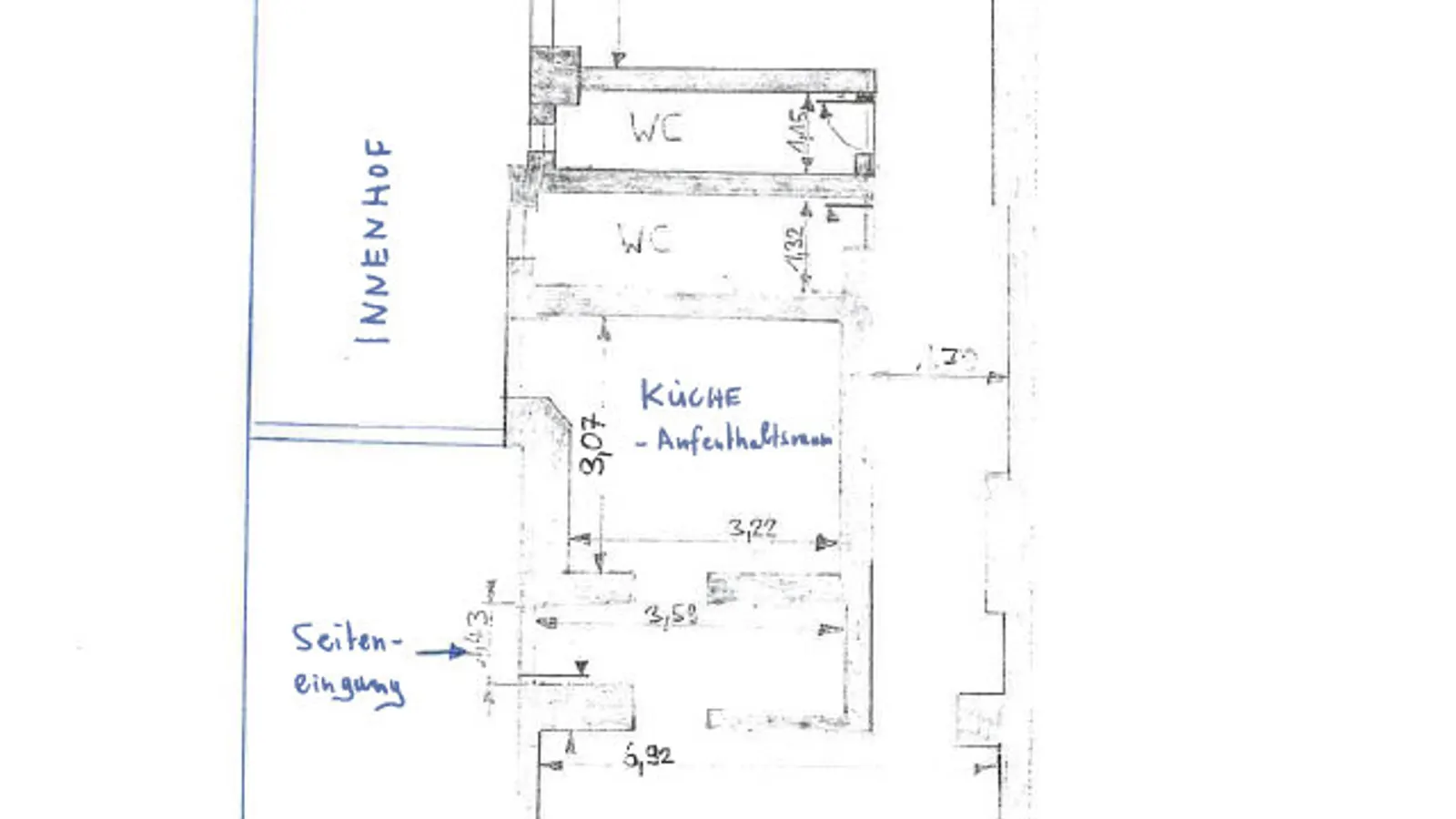
Zur Vermietung steht eine vielseitig nutzbare Laden- bzw. Gewerbefläche mit ca. 100 m², die sich nur wenige Schritte von der Ingolstädter Fußgängerzone entfernt befindet. Die Einheit besteht aus zwei großzügigen Haupträumen mit Fliesen- und Laminatboden.
Lage
Die Gewerbefläche befindet sich in zentraler Lage nahe der Ingolstädter Innenstadt und nur wenige Gehminuten von der Fußgängerzone entfernt. Die Umgebung ist geprägt von einer lebendigen Mischung aus Einzelhandel, Dienstleistern und gastronomischen Betrieben.
Umgebung
85049 Ingolstadt
Flächen & Räume
2 AngabenNutzfläche
100 m²
Nutzungsart
Gewerbe
Bau & Energie
1 AngabenBaujahr
1955
Weitere Details
3 AngabenImmoNr
vmg867
Boden
Laminat, Fliesen
Verfügbar ab
ab sofort
Kosten & Konditionen
Kaltmiete1.000 €
Nebenkosten150 €
Heizkosten in NebenkostenNein
Kaution3 MM
ProvisionsfreiNein
ProvisionshinweisNach Abschluss eines rechtswirksamen Mietvertrages ist der Mieter verpflichtet eine Provision in Höhe von 2,38 Monatsmieten inkl. MwSt. an den Makler zu bezahlen.
Außen-Courtage2,38 Nettomonatsmieten inkl. MwSt.
Energieausweis
Energieausweis liegt vorNein
Baujahr laut Energieausweis1955
Wesentlicher EnergieträgerFernwärme










