Objektdaten
Grundstück
Objektart
286,9 m²
Grundstück
Objektbeschreibung
Dieses attraktive Hinterlieger-Grundstück bietet Ihnen die seltene Gelegenheit, Ihren Wohntraum in ruhiger und geschützter Lage zu verwirklichen. Mit einer Grundstücksfläche von ca. 287 m² eignet sich das Grundstück ideal für die Bebauung mit einem Einfamilienhaus.
Lage
Das Grundstück liegt in einem ruhigen und gewachsenen Wohngebiet im südlichen Bereich von Ingolstadt. Die Umgebung ist geprägt von Wohnbebauung und bietet ein angenehmes, familienfreundliches Umfeld. Einkaufsmöglichkeiten, Schulen, Kindergärten sowie Einrichtungen des täglichen Bedarfs sind schnell erreichbar.
Umgebung
85051 Ingolstadt
Zur Anzeige der Karte benötigen wir Ihre Zustimmung zu externen Diensten.
Grundrisse
Grundrisse
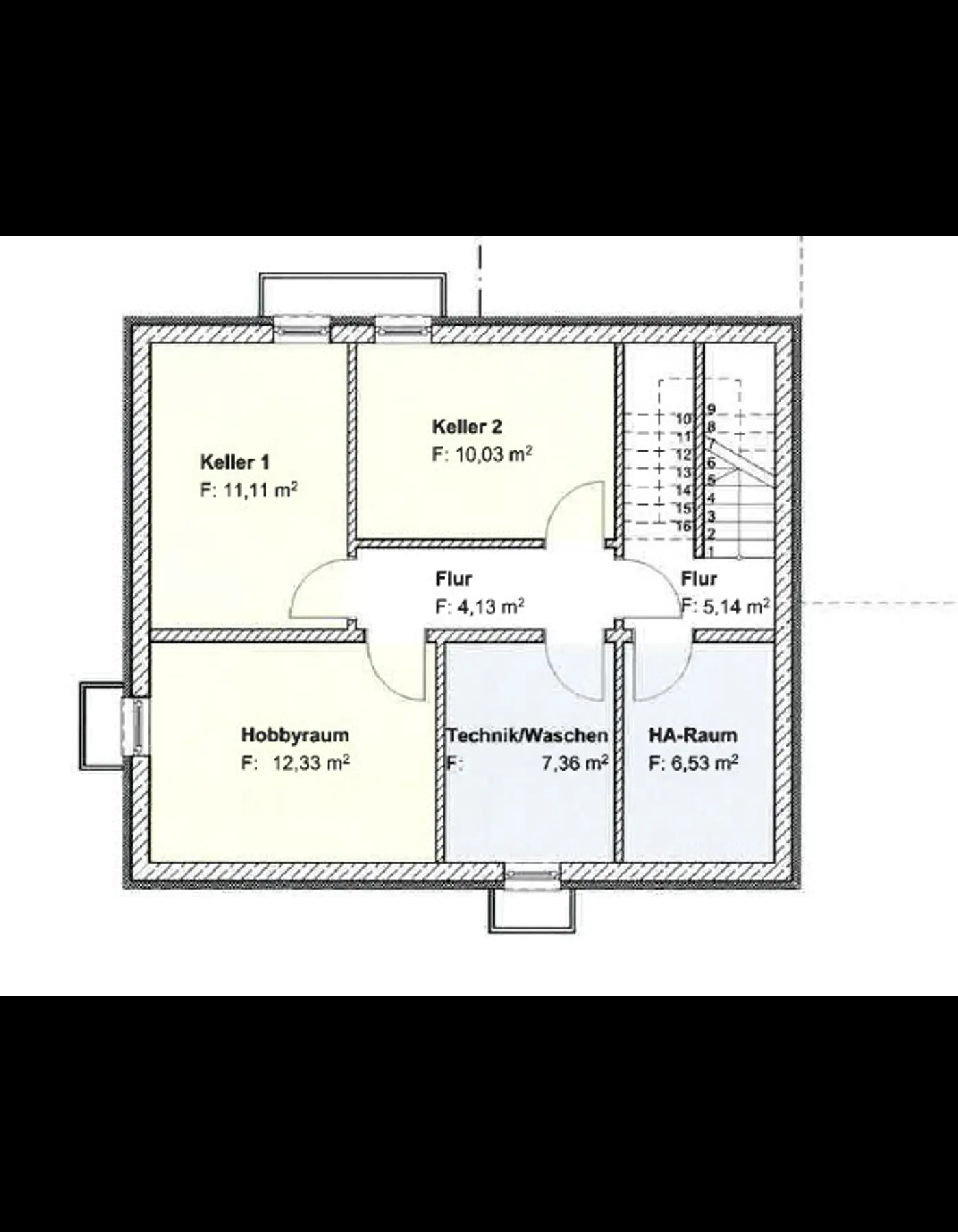
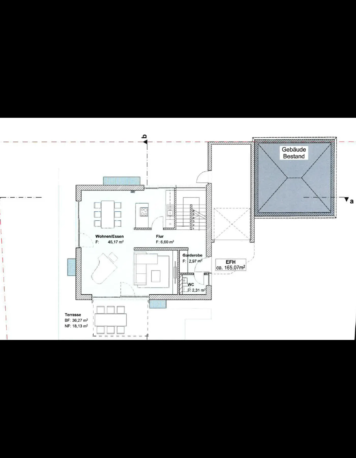
mögliche Bebauung Grundriss Keller
1 / 5





Flächen & Räume
1 AngabenNutzungsart
Wohnen
Weitere Details
2 AngabenImmoNr
vkp1758
Verfügbar ab
nach Vereinbarung
Kosten & Konditionen
Kaufpreis295.000 €
ProvisionsfreiNein
Außen-Courtage3,57 % inkl. MwSt.


